


| 物件名 | 宇佐市 江須賀中古住宅 | ||
|---|---|---|---|
| 物件所在地 | 大分県宇佐市大字江須賀1895-10 | ||
| 交通機関 | JR日豊本線『柳ヶ浦駅』より徒歩12分(850m) | ||
| 小学校区 | 柳ヶ浦小学校 | 中学校区 | 長洲中学校 |
| 土地面積 | 475.45 ㎡ | 坪数 | 143.82 坪 |
|---|---|---|---|
| 地目 | 宅地 | 区画数 | 1 |
| 駐車場 | 有(敷地内) | 駐車可能台数 | 3 台 |
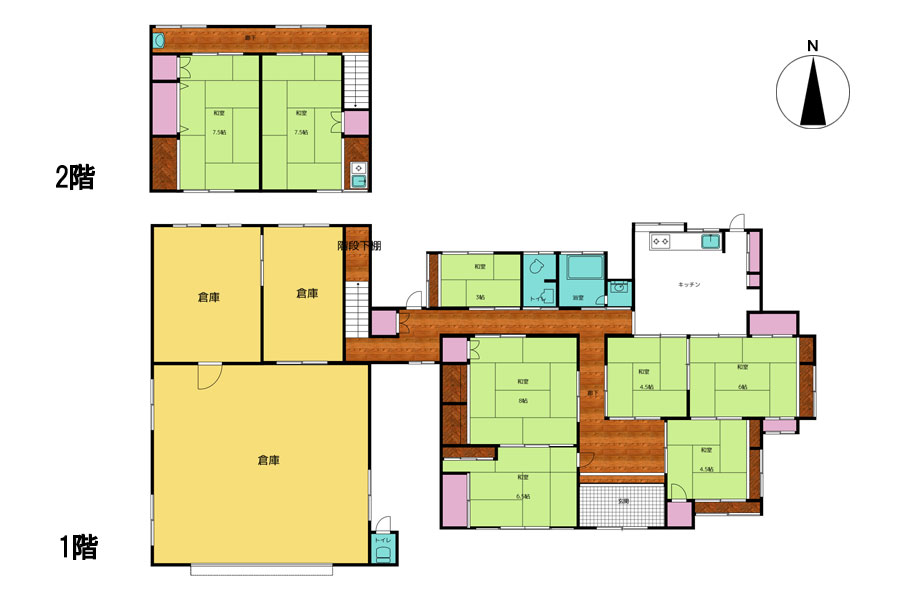
| 建物面積 | 269.67 ㎡ | 坪数 | 81.57 坪 |
|---|---|---|---|
| 建物階数 | 2階建て / 1,2階部分 | 各階面積 | 1階227.89㎡、2階41.78㎡、物置11.4㎡ |
| 建築年月日 | 昭和37年年月日不詳 | 建物構造 | 木造瓦スレート葺2階建 |
| 間取り | 8DK | 主要採光面 | - |
| 給湯設備 | あり / ガス | トイレ | 汲取り |
| 上水道 | ボーリング | 排水 | - |
| ガス | プロパンガス | 電気 | あり |
| その他設備 |
|
||
| リフォーム状況 | 1996年4月西側2階部分改築 | ||
| 権利形態 | 所有権 | 再建築 | - |
|---|---|---|---|
| 都市計画 | 非線引き区域 | 用途地域 | 指定なし |
| 建ぺい率 | 60 % | 容積率 | 200 % |
| 接道状況 | 南側幅員3.5mに接道 | ||
| 私道負担 | - | ||
| セットバック | - | 地勢 | 平坦 |
| 国土法 | - | 法令等 | 景観法 |
| 現況 | 空家 | 取引形態 | 仲介 |
| 引渡 | 相談 / - | 引渡方法 | 現況 |
| 別途金 | ■登記費用 ■仲介手数料 |
||
|---|---|---|---|
| 特例手数料 | 本物件は『低廉な空き家等』に該当します。そのため、仲介手数料については別途規定があります。 詳細はこちらのページをご覧頂くか弊社へお問い合わせください。 |
||
| 備考 | - | ||
| 更新日 | 2025年 9月 30日 | 管理番号 | I-185 |

| 周辺施設 | 柳ヶ浦小学校まで徒歩9分(650m)、長洲中学校まで徒歩36分(2.7km)、柳ヶ浦高等学校まで徒歩7分(500m)、トキハインダストリー長洲店まで車で3分(1.1km)、セブン-イレブン 宇佐江須賀店まで車で2分(800m) | ||
|---|---|---|---|
